G+6 Storied Residential Building Noakhali

G+6 Storied Residential Building Noakhali

Project Overview
This G+6 residential building in Noakhali is designed to provide modern, functional, and comfortable living spaces for its occupants. Catering to the client’s requirements, the project emphasizes efficient space planning, aesthetic appeal, and structural integrity, ensuring a harmonious blend of practicality and contemporary design.
Key Features & Design Approach
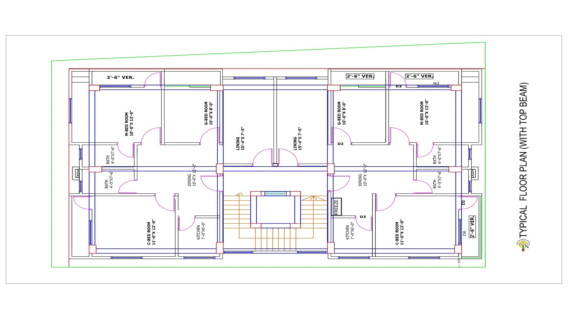
✔ Functional Layout – Optimized floor plans for maximum space utilization and natural ventilation.
✔ Modern Aesthetics – Clean lines, balanced proportions, and tasteful façade treatment.
✔ Client-Centric Design – Customized to meet the specific needs of Porimol Chandra Das Gong.
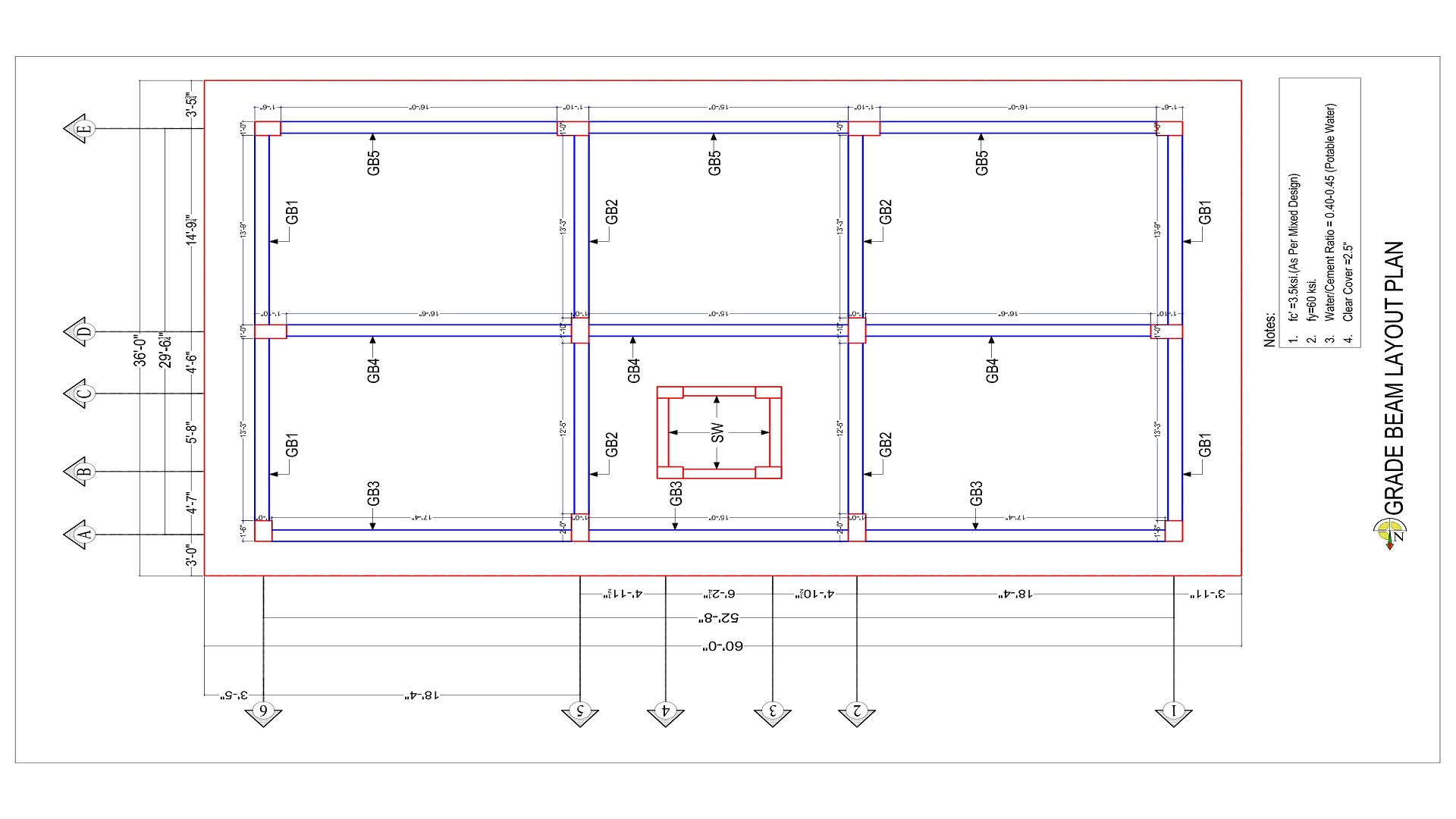
✔ Structural Efficiency – Robust construction methodology ensuring safety and durability.
✔ Local Compliance – Adherence to regional building codes and environmental considerations.
Design Deliverables
•    Architectural Drawings – Detailed floor plans, elevations, and sections.
•    3D Visualization – Realistic renderings to visualize the final structure.
•    Structural & MEP Coordination – Integrated engineering for seamless execution.

Related Projects

...

Green City – G+9 Storied Residential Building at Magura

Location: Magura, Bangladesh Type: High-Rise Residential Development Scope: 10-Story (G+9) Sustain...

...

Urban Oasis residential building in Jatrabari, Dhaka

A 7-story residential building in Jatrabari, Dhaka, designed to provide a serene and modern living s...

...

Amar Ekushey (G+12) Storied Residential Building at Dhaka

A G+12 residential building in Dhaka, Bangladesh, designed with modern aesthetics, functional living...

What our client says about our services.

  • From design to execution, their team delivered beyond expectations. A seamless and stress-free experience!

    Client Image

    Jubayer Islam

    coder71

  • Exceptional work! They transformed our vision into reality with precision and creativity. Highly recommend their expertise!

    Client Image

    Samiul Islam Sakib

    coder71