Liberty Square (B+G+13) Storied Residential Building

Liberty Square (B+G+13) Storied Residential Building

Description:
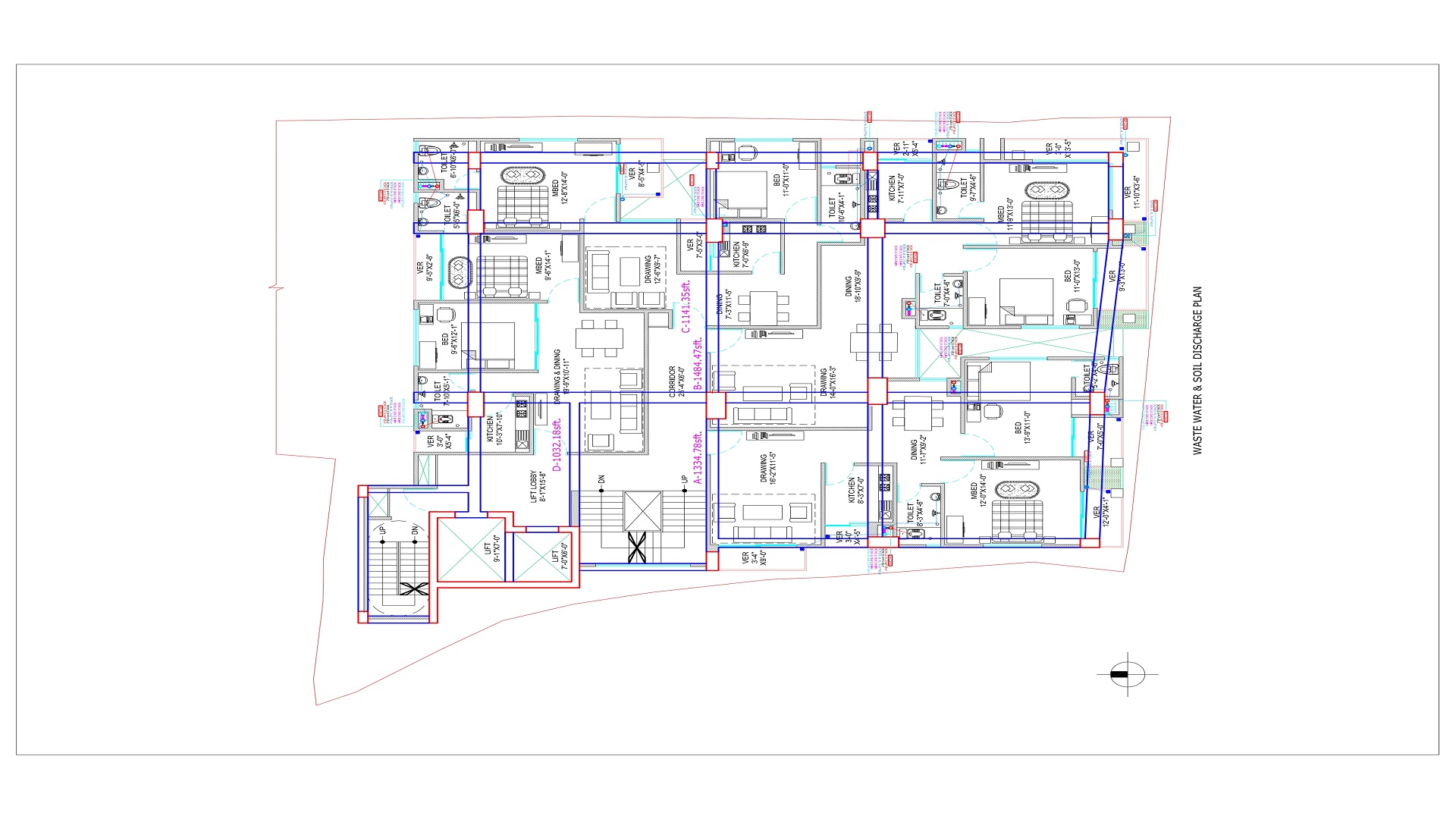
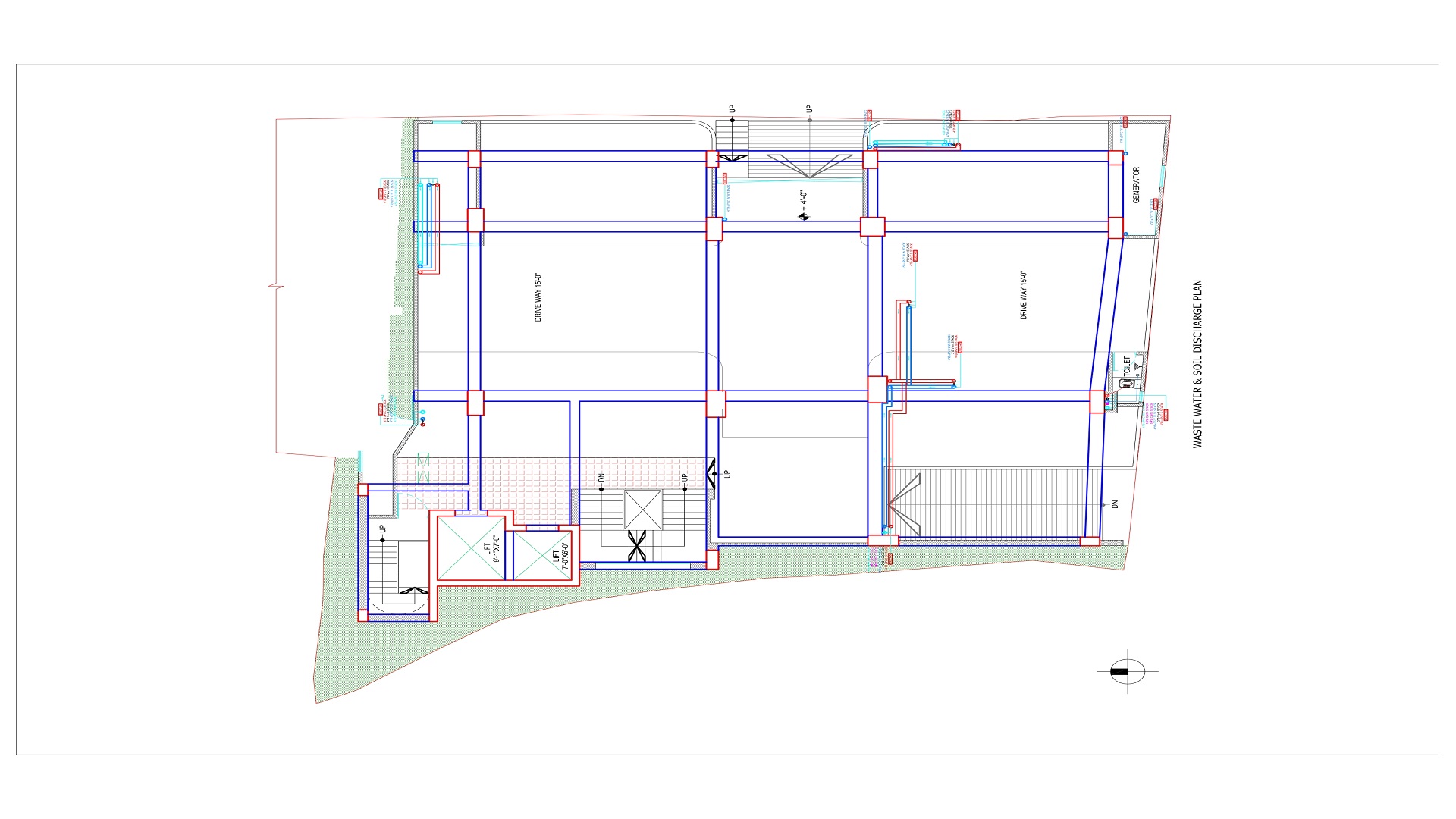
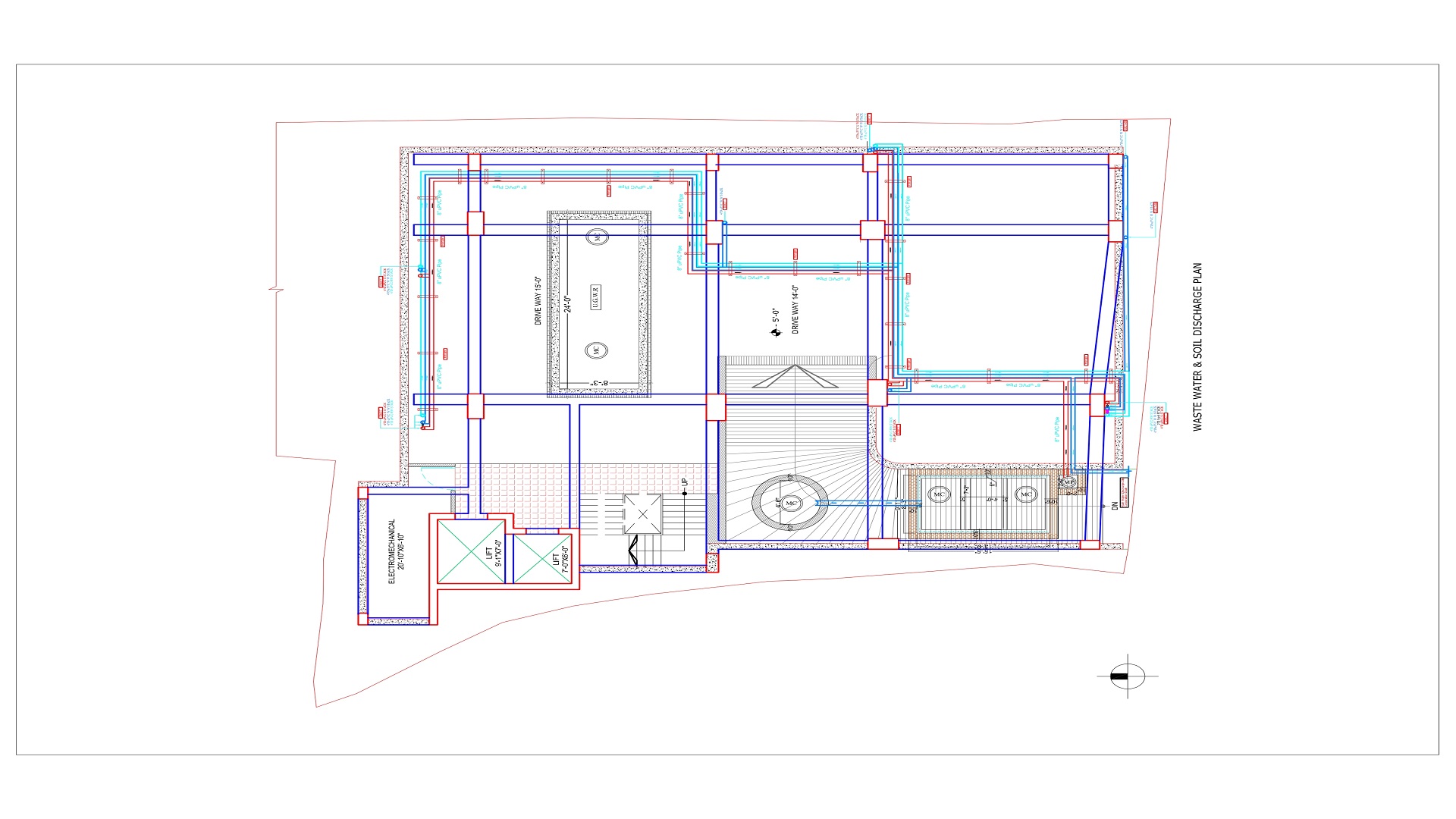
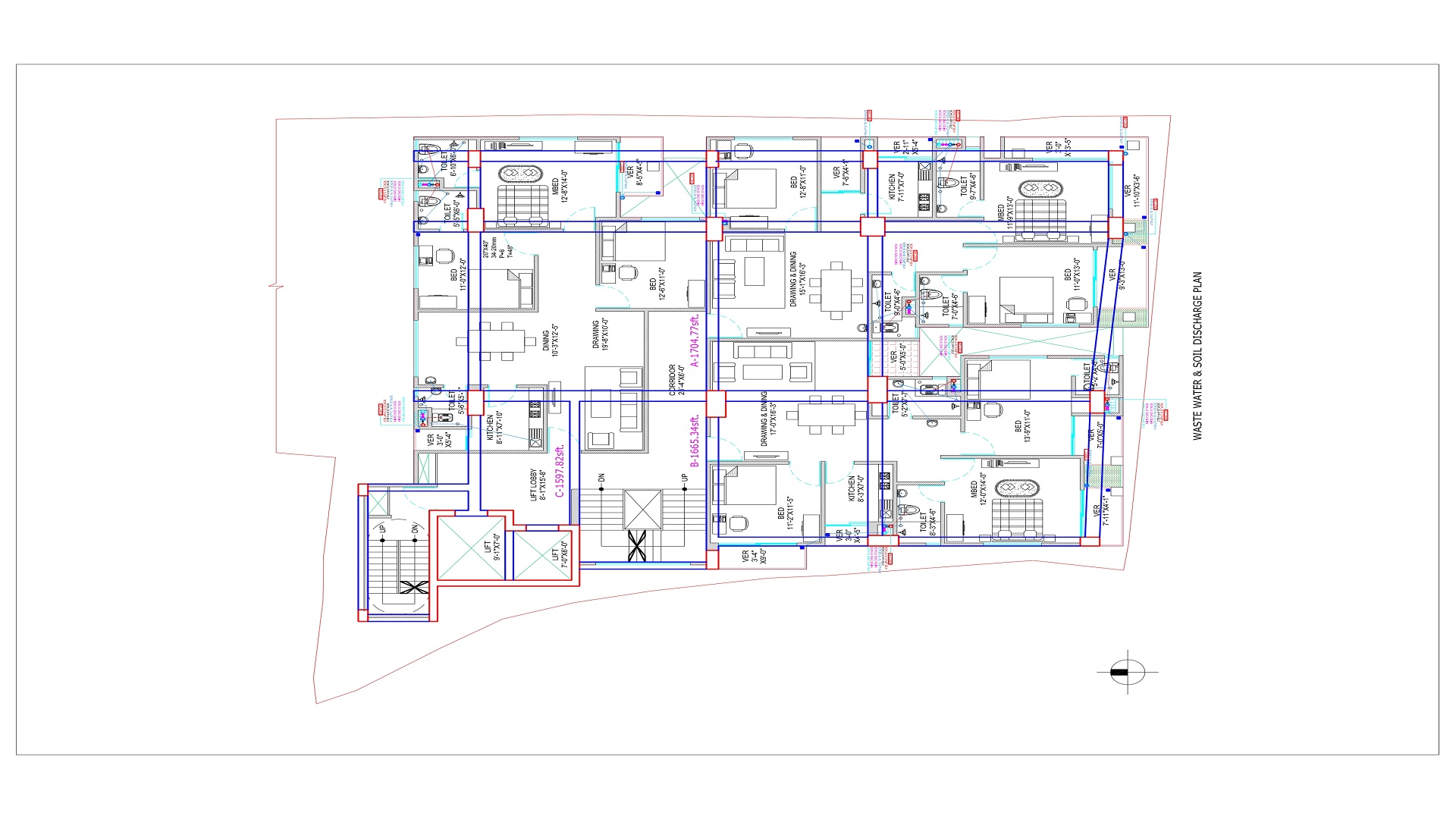
Liberty Square is a ground floor + 13-story residential building located at Dag No. 875/2453, J.L No. 45/58, Mouza-Rajshahi, G.C.C Rajshahi, Bangladesh. This project features a modern architectural design, optimized for urban living while incorporating sustainable construction practices.
Our team handled full 2D and 3D design development, including detailed floor plans, structural layouts, elevations, and high-quality 3D renderings. The building is designed to maximize space efficiency, natural lighting, and ventilation, ensuring a comfortable living environment.


Key Features:

✔ Mixed-Use Potential – Designed to accommodate future commercial adaptability on lower floors.
✔ Sustainable Design – Energy-efficient MEP systems and eco-friendly material choices.
✔ Local Material Integration – Use of locally sourced materials for cost efficiency and cultural relevance.
✔ Modern Aesthetics – Clean lines, functional balconies, and contemporary façade treatment.
✔ Compliance & Safety – Adherence to local building codes and earthquake-resistant structural design.

Related Projects

...

MetroLife Tower

A 14-story mixed-use residential and commercial building in Tongi, Gazipur, designed for modern urba...

...

Amar Ekushey (G+12) Storied Residential Building at Dhaka

A G+12 residential building in Dhaka, Bangladesh, designed with modern aesthetics, functional living...

What our client says about our services.

  • From design to execution, their team delivered beyond expectations. A seamless and stress-free experience!

    Client Image

    Jubayer Islam

    coder71

  • Exceptional work! They transformed our vision into reality with precision and creativity. Highly recommend their expertise!

    Client Image

    Samiul Islam Sakib

    coder71