Materials Estimation Excel Sheet

৳4000 ৳4500
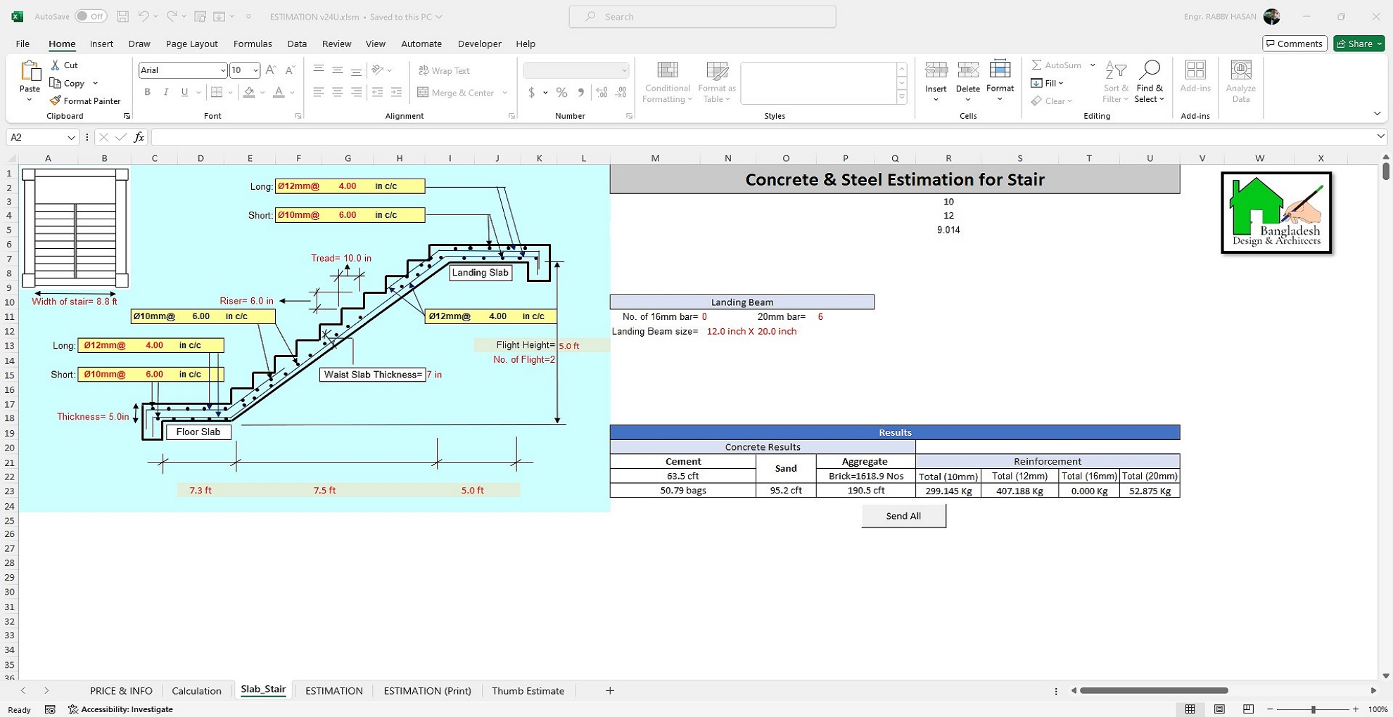
ESTIMATION EXCEL SHEET INCLUDES Brick Estimation (With mortar) Concrete Estimation (For Beam & Column) Concrete Estimation (For Slab & Footing) Mortar Estimation Steel Estimation for Slab/Footing/Pile Cap/Landing Spiral Column Estimation Concrete & Stirrup Estima... See More
Order Forms

What our client says about our services.

  • Precise beam-column designs and flawless pile cap estimations. Highly recommended!

    ...

    Asadul Islam Masum

    Us Bengol

  • Their earthquake and wind load analysis ensured our building’s safety. Excellent work!

    ...

    Shahadot Hossain

    Engineer || Lecturer