9 (Nine) Storied Residential Building

9 (Nine) Storied Residential Building

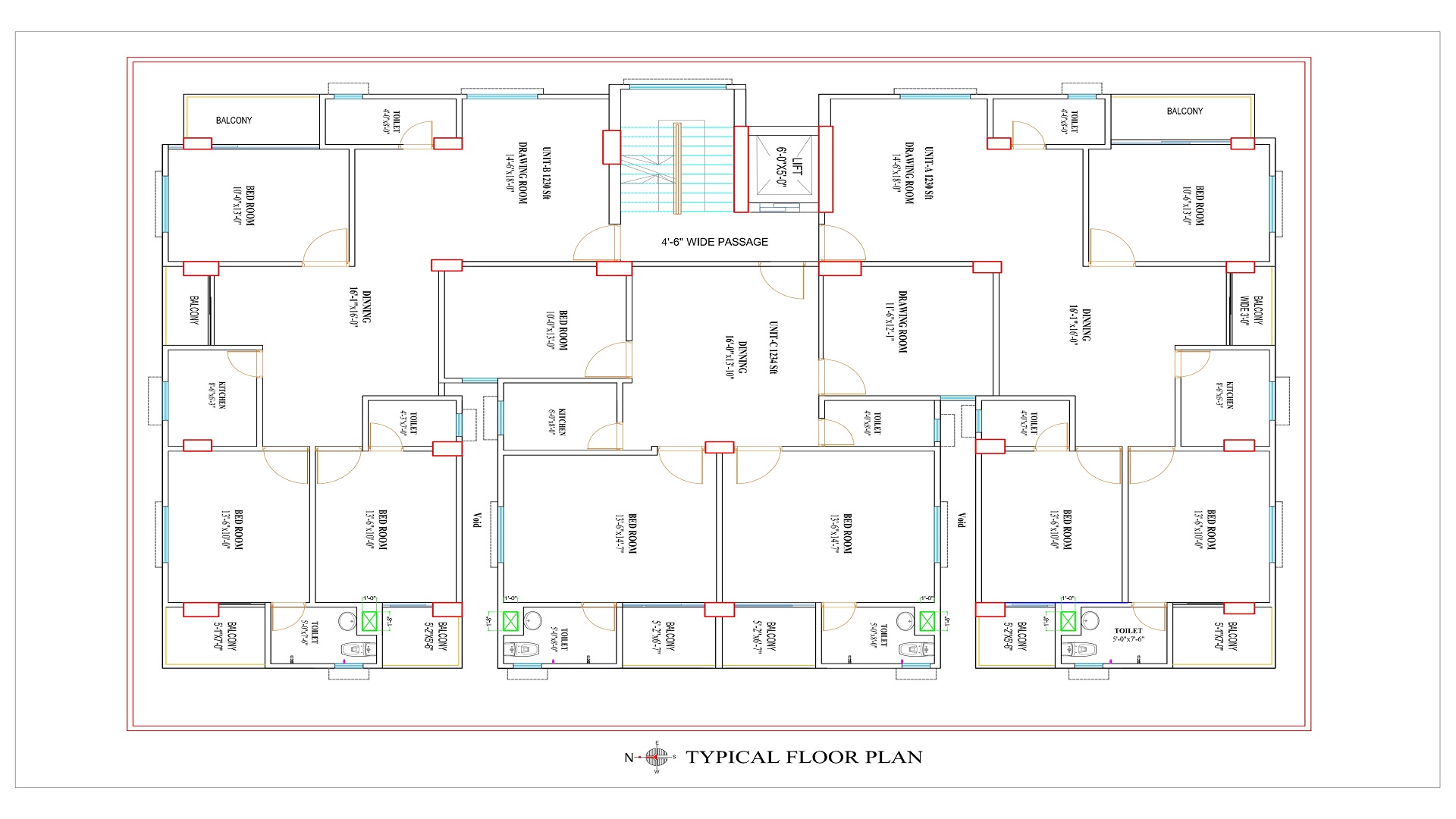
Project Overview
A modern 9-story residential building designed for optimal living comfort and functionality. Located in Dhaka, this project focuses on space efficiency, structural integrity, and aesthetic appeal, catering to urban residential needs while adhering to local building regulations.
Key Features & Design Approach
•    Residential-Focused Design – Thoughtfully planned apartments with optimal space utilization.
•    Structural Compliance – Designed per Dhaka’s building codes, ensuring safety and durability.
•    Modern Aesthetics – Clean lines, functional balconies, and contemporary façade treatments.
•    Natural Light & Ventilation – Strategically placed windows and openings for airflow and daylight.
•    Utility & Convenience – Efficient layout for elevators, staircases, and common areas.
Design Deliverables
•    2D Floor Plans – Detailed layouts for each level.
•    Elevation Drawings – Exterior design visualization.
•    Structural & MEP Plans – Coordination for electrical, plumbing, and HVAC systems.
•    3D Renderings (if required) – Realistic preview of the building’s appearance.

Related Projects

...

Doctor's Castle Rajshahi

A 15-story mixed-use residential and commercial building design in Rajshahi, Bangladesh, combining m...

...

Urban Oasis residential building in Jatrabari, Dhaka

A 7-story residential building in Jatrabari, Dhaka, designed to provide a serene and modern living s...

...

G+6 Storied Residential Building Noakhali

Client: Porimol Chandra Das Gong Location: Noakhali, Bangladesh Type: Residential Building (Ground...

What our client says about our services.

  • From design to execution, their team delivered beyond expectations. A seamless and stress-free experience!

    Client Image

    Jubayer Islam

    coder71

  • Exceptional work! They transformed our vision into reality with precision and creativity. Highly recommend their expertise!

    Client Image

    Samiul Islam Sakib

    coder71