Capital Heights in Faridpur Sadar

Capital Heights in Faridpur Sadar

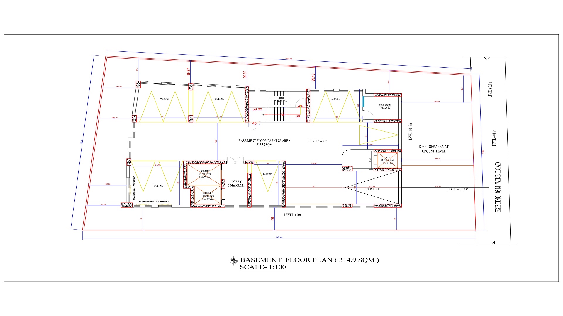
Description:
Capital Heights is a 5-storied commercial and residential building with an additional basement, strategically located in Faridpur Sadar, Bangladesh. The project was meticulously designed to optimize space, ensuring a seamless blend of business and residential needs.


Key Features:

Location:
o    Address: JL-103, No. Goalchamot Mouza
o    Khatian No: BS-7859
o    Plot No: 317, 318
o    Land Area: 15.13 Decimal
o    Faridpur Sadar, Faridpur
•    Owner: Mizanur Rahman
•    Building Type:
o    5-Storied Structure + 1 Basement
o    Mixed-Use (Commercial + Residential)
•    Design Highlights:
o    Efficient space planning for retail shops, offices, and apartments
o    Modern façade with cost-effective and durable materials
o    Basement for parking and utility services
o    Compliance with local building codes and FAR regulations
Scope of Work:
•    2D & 3D Architectural Design (Floor Plans, Elevations, Sections)
•    Structural Engineering & MEP Planning
•    Sustainable Design Considerations (Natural light, ventilation)

Related Projects

...

Sonar Bangla Residency

A 10-story residential building in Kushtia, Bangladesh, designed to offer modern, sustainable, and f...

...

Sunrise Villas at Savar

A 10-story mixed-use commercial and residential building design in Savar, Bangladesh, combining mode...

...

Doctor's Castle Rajshahi

A 15-story mixed-use residential and commercial building design in Rajshahi, Bangladesh, combining m...

What our client says about our services.

  • From design to execution, their team delivered beyond expectations. A seamless and stress-free experience!

    Client Image

    Jubayer Islam

    coder71

  • Exceptional work! They transformed our vision into reality with precision and creativity. Highly recommend their expertise!

    Client Image

    Samiul Islam Sakib

    coder71