Green City – G+9 Storied Residential Building at Magura

Green City – G+9 Storied Residential Building at Magura

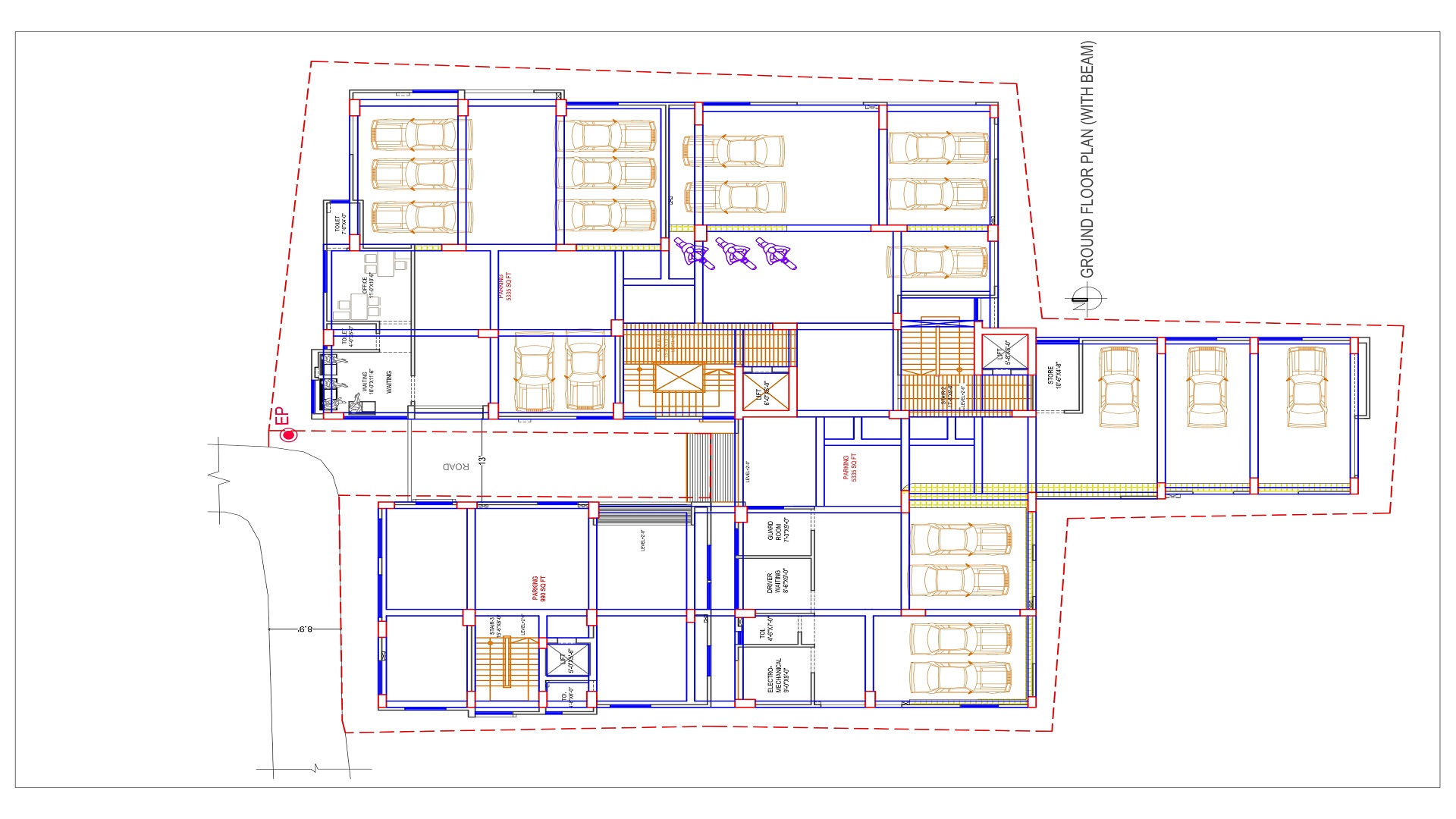
Project Overview
Green City is a modern 10-story (G+9) residential building in Magura, designed to offer sustainable, comfortable, and community-centric living spaces. The project emphasizes eco-friendly architecture, efficient space planning, and aesthetic harmony with the urban landscape of Magura.
Key Features & Design Approach
✔ Sustainable Living – Integration of green design principles, energy-efficient systems, and natural ventilation.
✔ Smart Space Utilization – Functional floor plans optimizing living areas, balconies, and communal spaces.
✔ Modern Aesthetics – Clean lines, contemporary façade treatments, and landscaped surroundings.
✔ Local Material Adaptation – Use of durable, locally available materials to reduce environmental impact.
✔ Safety & Comfort – Earthquake-resistant structural design and well-planned MEP (Mechanical, Electrical, Plumbing) systems.
Design Deliverables
•    2D Architectural Plans – Detailed floor layouts, sections, and elevation drawings.
•    3D Visualizations – Realistic renderings of interiors, exteriors, and site integration.
•    Structural & MEP Coordination – Efficient systems for long-term sustainability.

Related Projects

...

The Horizon Complex at Pabna

A 10-story mixed-use commercial and residential building design in Pabna, Bangladesh, blending moder...

...

G+3 Storied Residential Building at Lakhipur

Client: Tamim Location: Lakhipur, Bangladesh Type: Residential Building (Ground + 3 Floors)

...

Bismillah Tower in Dhaka, Bangladesh

A modern (B+G+13)-storied mixed-use residential and commercial tower in Dhaka, Bangladesh, featuring...

What our client says about our services.

  • From design to execution, their team delivered beyond expectations. A seamless and stress-free experience!

    Client Image

    Jubayer Islam

    coder71

  • Exceptional work! They transformed our vision into reality with precision and creativity. Highly recommend their expertise!

    Client Image

    Samiul Islam Sakib

    coder71