G+9 Storied Residential Building Habiganj

G+9 Storied Residential Building Habiganj

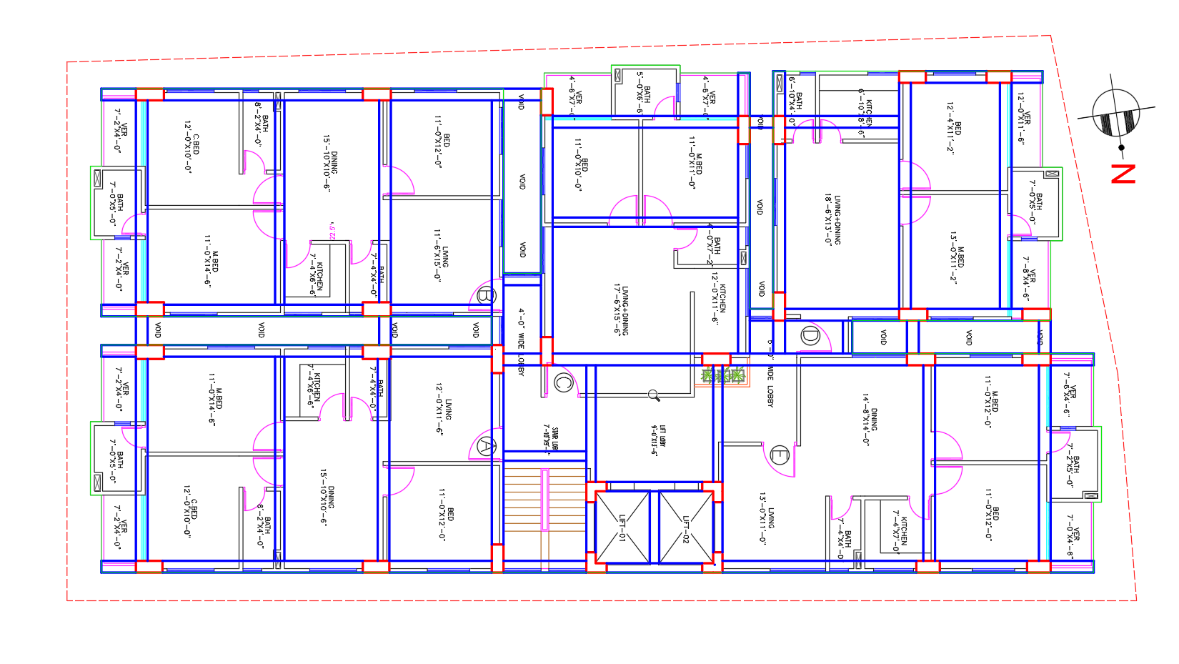
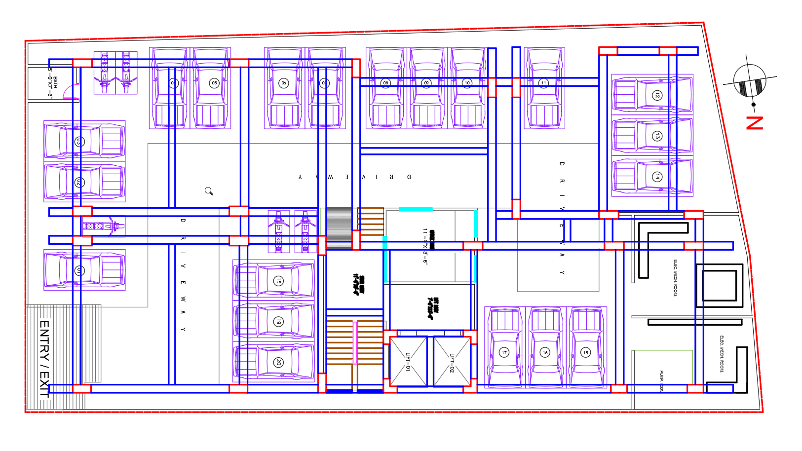
This project involves the architectural planning and design of a proposed Ground + 9 storied residential building in Habiganj. The development is envisioned as a modern residential structure that combines functional planning, structural efficiency, and aesthetic appeal.

The design emphasizes optimized space utilization, natural lighting and ventilation, and comfortable living environments tailored to the client’s requirements. The building layout ensures privacy, circulation efficiency, and compliance with relevant building codes and regulations.

Project Overview
Project Name: Proposed G+9 Storied Residential Building
Location: Habiganj, Bangladesh
Client: Hafaz Hossain Ahamad & Tania Akhter
Building Height: Ground + 9 Floors
Project Type: Residential
Design Scope: Architectural planning, floor layouts, elevations, and 3D visualization
Design Focus: Functionality, structural safety, ventilation, and modern aesthetics

This proposed residential development aims to provide a secure, comfortable, and sustainable living environment while enhancing the surrounding urban fabric of Habiganj.

Related Projects

...

Doctor's Castle Rajshahi

A 15-story mixed-use residential and commercial building design in Rajshahi, Bangladesh, combining m...

...

17-Story Commercial & Residential Building Narayanganj.

Khuwab Tower is a modern 17-story mixed-use development designed to serve both residential and comme...

...

Capital Heights in Faridpur Sadar

A 5-storied mixed-use commercial and residential building with a basement in Faridpur, Bangladesh, d...

What our client says about our services.

  • From design to execution, their team delivered beyond expectations. A seamless and stress-free experience!

    Client Image

    Jubayer Islam

    coder71

  • Exceptional work! They transformed our vision into reality with precision and creativity. Highly recommend their expertise!

    Client Image

    Samiul Islam Sakib

    coder71